Plantegning

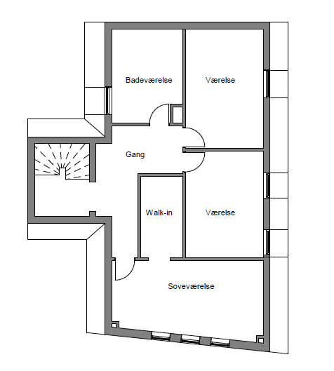
1. salen bliver vores ‘soveafdeling’. Planen er at åbne op til kip på hele etagen på nær badeværelse og walk-in, som kommer til at fungere som hems til de to værelser.

1. salen bliver vores ‘soveafdeling’. Planen er at åbne op til kip på hele etagen på nær badeværelse og walk-in, som kommer til at fungere som hems til de to værelser.