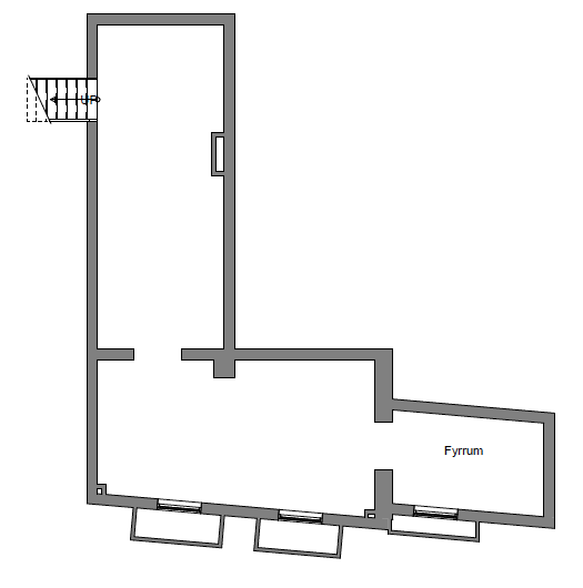
Plantegning

Det er jo fedt at have en kælder, også selvom det er en lidt lavloftet en af slagsen! Vores kælder er som de fleste – lidt fugtig, men med hjælp fra vores gode murerven, tror vi på at lidt reparationer af de gamle lyskasser kan gøre underværker!
Anders har en drøm om at få en vinkælder, så hvis alt flasker sig er planen at lave en nedgang inde i huset, hvor han kan opbevare alle de mange flasker vin vi ikke ejer 🙂
Det ser ud som om, at der er hvælvede lofter i det der i dag er fyrrum. Fyret er så gammelt, at det desværre nok trænger til udskiftning, men intet er så skidt at det ikke er godt for noget, for det betyder at vi så kan flytte det ud af det bageste rum med de fine lofter og lave vinkælder der.
Resten af kælderen kommer til at fungere som fyrrum og opbevaring.