
Jeg kan ikke sige det nok, noget af det fedeste ved at renovere er, at vi kan få alting lige som vi gerne vil have det – men jeg er også ret sikker på at jeg siger det så tit for at overbevise mig selv om at det vi er igang med, er en god idé..
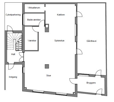
En af de ting der både er rigtig sjove og utrolig opslidende, er at skulle tage de mange beslutninger der skal tages før huset står færdigt. ‘Hvor meget isolering skal der i taget?’, ‘skal gulvvarmeslangerne være 16 eller 20 mm?’, ‘hvilken type isolering til ydervæggene?’ osv osv osv.. Men heldigvis er rigtig mange af de beslutninger der skal tages virkelig sjove, og det er sjovt nok også dem man husker – herunder indretning og materialevalg i vores nye køkken! Da huset i sin tid fungerede som menighedshus blev der lavet søjler og lagt bjælker op, hvilket betyder at vores stueetage er ét stort rum, hvilket gør mulighederne uendelige. Vi bruger vores køkken meget og glæder os til at få et kæmpe køkken i åben forbindelse med spisestue og stue.

Lige for tiden knokler vi på første salen, da det er der vi skal bo når vi ikke længere har lejligheden, så der er lidt tid til det er køkkenets tur, men vi ved hvor vigtigt det er at brainstorme i god tid, så man kan nå at vende alle idéer inden de endelige beslutninger skal tages.
Vi er ret sikre på at indretningen er på plads nu!

Er man blevet voksen når man glæder sig aller mest til sit bryggers og viktualierum?! 🙂 Dem der kender mig ved at jeg har en obsession med kasser og alt der kan få rod til på magisk vis at forsvinde, så et viktualierum stod højt på min ønskeseddel – og julen kom tidligt i år! Man kommer ind i viktualierummet gennem et skab uden bagbeklædning og herinde får vi forhåbentlig plads til alt det vi ikke bruger hver dag og de ting der fylder for meget i skufferne i køkkenet.
Huset er vores fjerde hjem sammen, og indtil videre har vi taget ret sikre, nogen vil måske mene kedelige, valg når det kommer til køkken, men denne gang har vi mod på at prøve noget andet og synes det er på tide at få lidt flere farver ind i vores hjem. Køkkenlågerne bliver støvet grønne fyldningslåger med messinggreb, vores armatur skal være en Quooker i messing, ligesom i lejligheden (den kan vi ikke undvære!) og bordpladen bliver en hvid marmor.
Skabskabinetterne skal være i eg, og min største drøm er at ringe til Københavns Møbelsnedkeri og få dem til at lave det, men da vores noget skrabede budget helt sikkert ikke kan holde til et køkkeneventyr på den forkerte side af 500.000 kr., må vi selv i gang, og Anders virker heldigvis optimistisk og glæder sig til at skulle masseproducere køkkenelementer 🙂


Øen midt i køkkenet kommer til at være et stort arbejdsbord på 120×240 cm, og vi snakkede allerede inden vi havde købt huset om, at vi ville have en ø på ben og kun med en eller to skuffer, så den virker let og man kan se det flotte gulv løbe under. Vi har fundet en del inspiration på Pinterest, og har kigget ret meget på køkkener fra Plain English Design.
Det var første lille kig indenfor i vores køkkenverden, og det er bestemt ikke sidste gang vi deler glimt af vores køkkendrømme med jer.