Huset inden ombygning

Vi var så ivrige efter at komme igang med huset, at vi ikke nåede at tage mange billeder af 1. salen da den stadig var institutionspræget med linoleumsgulve, Rockfonlofter og virkelig grimme møbler! Men for at give jer et lille indtryk af hvordan huset så ud inden vi gik i gang har jeg samlet de billeder vi har.

Entre

thumb_img_3208_1024.jpg

Vores entre/trapperum har de sidste mange år fungeret som netop det, og det kommer det også til når vi er færdige, men forhåbentlig kan vi skabe en noget hyggeligere stemning. Hoveddøren skal skiftet, væggen men døren under trappen skal fjernes, vi laver høje paneler, ny trappe og lige for tiden er vi ved at beslutte hvile fliser der skal på gulvet, men som det ser ud nu bliver det lavasten i sildebensmønster.

Badeværelse

thumb_img_3209_1024.jpg

Det røde badeværelse har haft hele tre toiletter. Det bliver reduceret til et toilet, en bruseniche og selvfølgelig en håndvask. Lavasildeben og rosa toner, vi glæder os! Rummet er 16 kvm stort, så det bliver delt så vi får et viktualierum med indgang fra køkkenet langs galvvæggen.

Gæsteværelse

thumb_img_3210_1024.jpg

Det her mærkelige gennemgangsværelse til det røde toilet bliver fjernet, og så bygger vi et gæsteværelse op – uden gennemgang til toilettet, men med plads til en god stor seng. Der er ikke noget vindue i værelset, så vi er igang med at finde andre måder at få naturligt lys ind på.

Køkken

thumb_img_3211_1024.jpg

Mit ‘pakke alt i kasser og ren bordplade’-gen får det helt dårligt over de her billeder, og jeg kan med garanti sige at vores kommende køkken langt fra kommer til at se sådan her ud! Hvis du er nysgerrige på vores køkken kan i se en beskrivelse i indlægget ‘Køkkentanker vol. 1 !’

Stue

thumb_img_3214_1024.jpg

Stuen har fungeret som aktivitetsrum, så voksduge, puslespil og malergrej har domineret. Vores plan er en stor biblioteksvæg, sildeben på gulvet, rå granitsøjler, stuk, høje paneler og vores dejlige møbler. Fra stuen kommer der i det ene hjørne også en nedgang til kælderen, hvor vi på sigt vil lave en hyggelig vinkælder.

Bryggers

thumb_img_3215_1024

thumb_img_0376_1024

Computerrum bliver til bryggers med vaskemaskine, tørretumbler om masser af plads til arbejdstøj og barnevogn.

Soveværelse

thumb_img_3223_1024.jpg

Linoleumsgulvet og de grimme lofter er væk. Vi er sikre på at de vildt flotte buede vinduer kommer mere til sin ret når der bliver åbnet op til kip. Pudsen er blevet banket af murstenene omkring vinduerne og den rå murstensvæg kommer til at stå så godt til sildeben på gulvet og lækre bløde dyner på sengen.

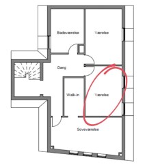
Værelser

thumb_img_3219_1024thumb_img_3220_1024.jpg

De førhenværende kontorer bliver til et børneværelse og et kontor/gæsteværelse med åbent til kip og en hems til hvert værelse. Ribberne er væk, men mon ikke vi kunne finde på at sætte en op igen på Myntes værelse.

Badeværelse

thumb_img_3218_1024.jpg

Et af kontorene på første sal bliver til badeværelse, og et dejligt stort et af slagsen! Hele 12 kvm., så vi får rigelig plads til en stor bruseniche og et badekar. Gulv og bagvæg bliver beklædt med glaserede lavasten i flotte farver og alle armaturer bliver i messing.

Gang 1. sal

thumb_img_3222_1024

Toilet og alle skillevægge er fjernet og væggen mellem trapperum og 1. sal revet ned. Vi håber på en åben og lys fordelingsgang med hyggelige kroge til møbler og planter.

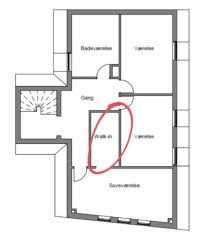
Walk-in

thumb_img_3221_1024

thumb_img_0185_1024

Vi er ikke de store tedrikkere, så tekøkkenet bliver sløjfet og i stedet bliver der bygget et walk-in – for dét har vi brug for! 🙂

 

 

Vi glæder os så meget til at kunne dele nogle efter-billeder !