For os har det været vigtigt at ryste posen og starte helt forfra når det kommer til indretningen af vores hus. Ingen af indervæggene er bærende, så de bliver alle væltet og alle ruminddelinger er i spil.
Vi er meget visuelle mennesker begge to, så da vi skulle lave plantegningerne efter kun 2-3 besøg i huset inden vi overtog, var lidt af en udfordring – og der er da også lavet nogle småændringer efter vi er gået i gang med at bygge. Bl.a. er væggen mellem trapperummet og gangen på første sal blevet væltet.
Vi har ikke gidet at bruge tiden på at tegne de gamle plantegninger ind, så det er de helt gamle planer som er de eneste vi har kunne finde i byggesagsarkiverne. Desværre ved vi ikke hvordan huset har set ud inden diverse institutioner har overtaget – det havde ellers været sjovt at se hvordan kirken brugte det!
Fremtidig plantegning for stueetagen:

Gammel plantegning for stueetagen:

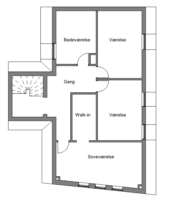
Fremtidlig plantegning for 1. sal:

Gammel plantegning for 1. sal:
